5322:店・事 勝俣組ビル
| 賃料 | 27.39万円 |
|---|---|
| 共益費・管理費 | 74,700円 |
| 所在地 | 小田原市栄町1丁目 |
| 交通 | JR東海道本線 小田原駅まで 徒歩3分 |
| 間取 | |
| 総戸数 | |
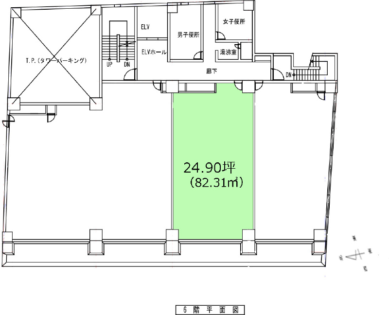
| 面積 | 82.31m²(24.89坪) |
| 築年月 | 1991/01 |
| 敷金 | 10ヶ月 |
|---|---|
| 礼金 | 1ヶ月 |
| 保証金 | - |
| 建物構造 | 鉄筋コンクリート造 |
| 所在階 | 6階/6階建 |
| 学区 | |
| 取引態様 | 一般媒介 |
| 更新 | 可 5年 |
| 敷引・償却 | - |
|---|---|
| 火災保険 | 要加入- |
| 保証会社 | 必須 全保連株式会社 契約時:賃料等x100%、次年度以降:毎年更新料として賃料等の10% |
| 駐車場 | 空有 |
| 諸費用 | |
| 入居時期 | 即時 |
特色
小田原駅東口にある商業施設「ミナカ小田原」目の前のビル最上階、バストイレ別、エアコン、エレベータ、二階以上、最上階、駐車場(機械式・サイズ制限あり、別途料金)、ご契約後に原状回復工事予定、家賃保証会社利用必須(上場企業除く)、火災保険加入必須、賃料と管理費には消費税がかかります。
コメント
小田原駅東口にある商業施設「ミナカ小田原」目の前のビル最上階、バストイレ別、エアコン、エレベータ、二階以上、最上階、駐車場(機械式・サイズ制限あり、別途料金)、ご契約後に原状回復工事予定、家賃保証会社利用必須(上場企業除く)、火災保険加入必須、賃料と管理費には消費税がかかります。
周辺地図
位置情報に関するご注意:現在位置情報は精査中の為、正確ではない場合があります。あくまで参考程度の情報となります。












